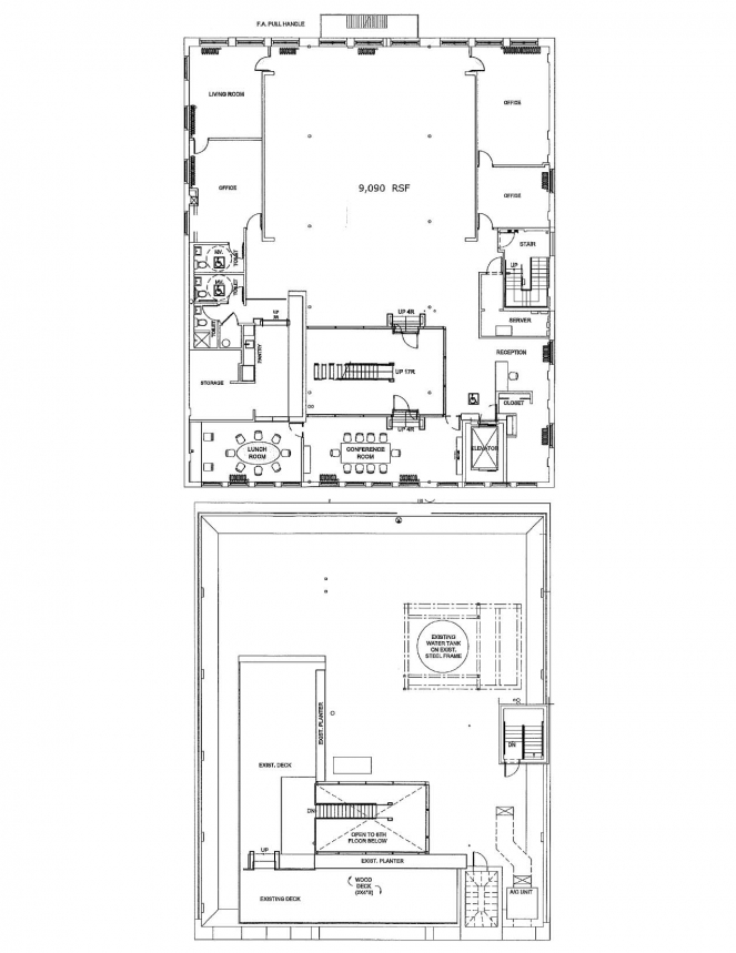
555 West 25th-6th Fl (Chelsea)

555 West 25th-6th Fl