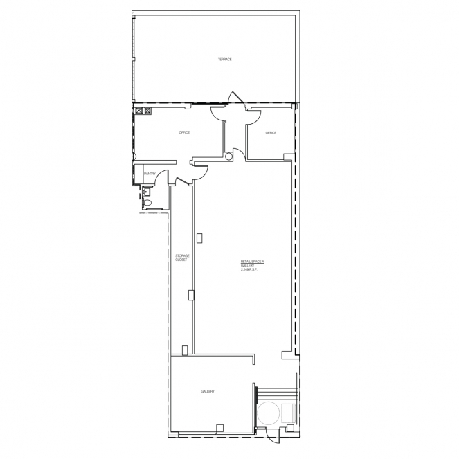
522 West 19th St. (Chelsea)

522 West 19th St.